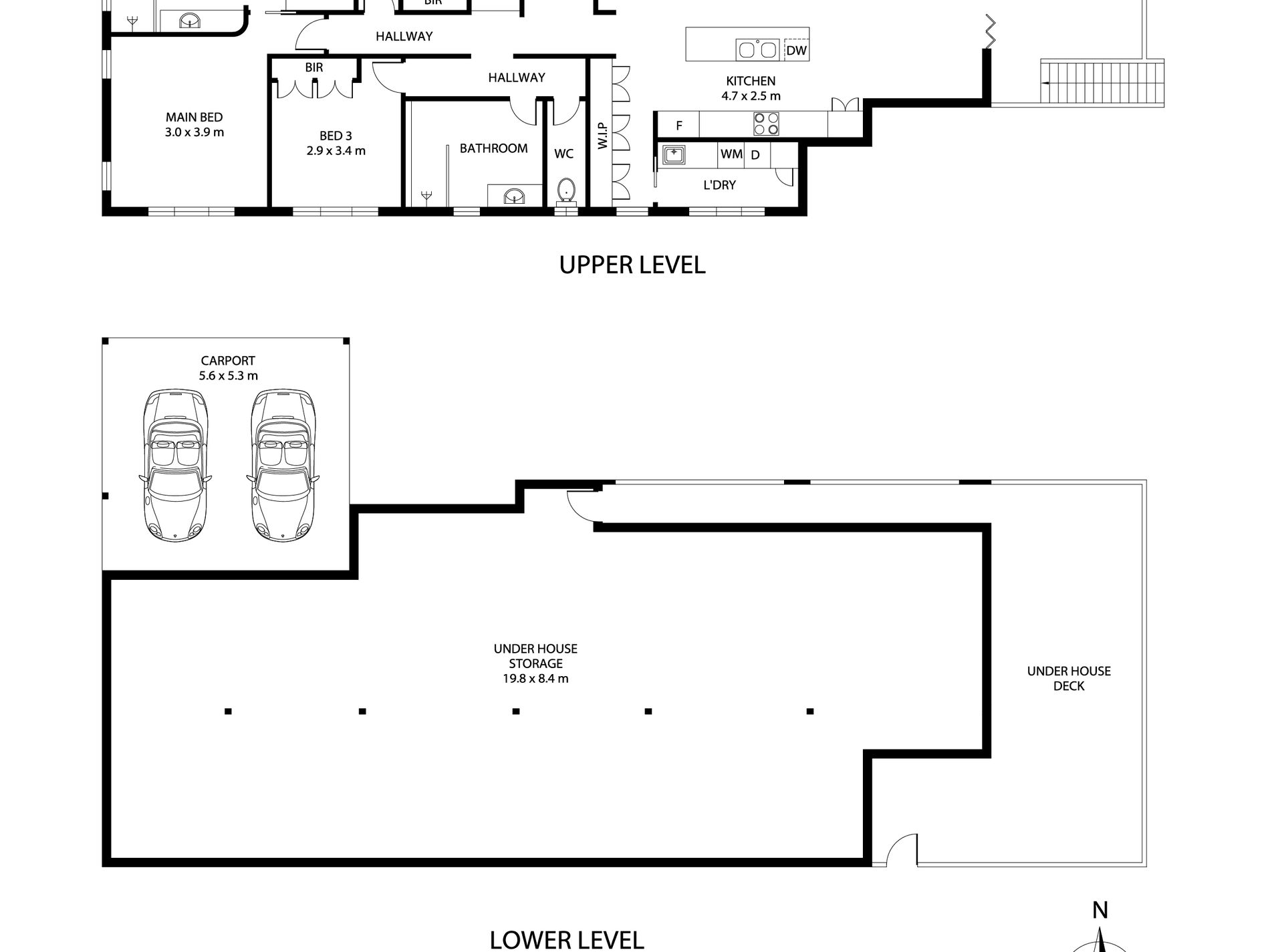
108 Tenth Avenue is a near new residence that sets a fresh standard for modern living in the heart of Railway Estate. Recently constructed and finished to an exceptional level, this thoughtfully designed home delivers a refined lifestyle with high end finishes, functional design, and striking architectural features throughout. Offering three bedrooms, two bathrooms, and seamless open plan living, this is a move in ready opportunity for buyers seeking quality, style, and low maintenance comfort.
With a designer kitchen, butler's pantry, and standout curved feature walls, every detail has been carefully considered to create a home that is both visually impressive and highly practical. Combined with generous vehicle accommodation and a flowing indoor-outdoor layout, this property is perfectly suited to modern living and entertaining.
The Property
- Near new build with nothing left to do
- High end finishes and fixtures throughout the home
- Three well appointed bedrooms, including a private master suite
- Two modern bathrooms with quality fittings
- Light filled open plan living and dining area
- Designer kitchen
- Butler's pantry providing additional storage and preparation space
- Statement curved feature walls adding architectural appeal
- Seamless connection to outdoor entertaining areas
- Double bay carport offering excellent vehicle accommodation
- Functional layout designed for low-maintenance living
- Provisions for a pool
The Location
- Positioned in the sought after suburb of Railway Estate
- Within catchment for Railway Estate State School (Prep-6)
- Within catchment for Townsville State High School (Years 7-12)
- Close proximity to additional quality schooling options including St Margaret Mary's College and Townsville Grammar School
- Minutes to the Townsville CBD, The Strand, and major lifestyle amenities
- Easy access to local parks, transport links, and everyday conveniences
- Located in a well-established, centrally positioned neighbourhood
108 Tenth Avenue is a standout opportunity to secure a near new home that combines modern design, premium finishes, and effortless living in a central location.
Features
- Deck
- Outdoor Entertainment Area
- Built-in Wardrobes

































