Escape to your own peaceful sanctuary with this expansive lifestyle property, perfectly positioned in the highly sought after Hervey Range. Set on approximately five acres of usable land, this residence offers the ideal balance of space, privacy, and practicality, perfect for families, hobby farmers, or those simply seeking a quieter way of life.
Surrounded by natural beauty and established greenery, the home has been designed for relaxed living, featuring an open plan layout that flows effortlessly to outdoor entertaining areas. A cosy fireplace adds warmth and charm, while wide open spaces invite you to enjoy everything acreage living has to offer. With extensive infrastructure already in place, this is a property where you can move in and immediately embrace the lifestyle.
The Property
- Approx. 2 hectares (5 acres) of fully fenced, usable land
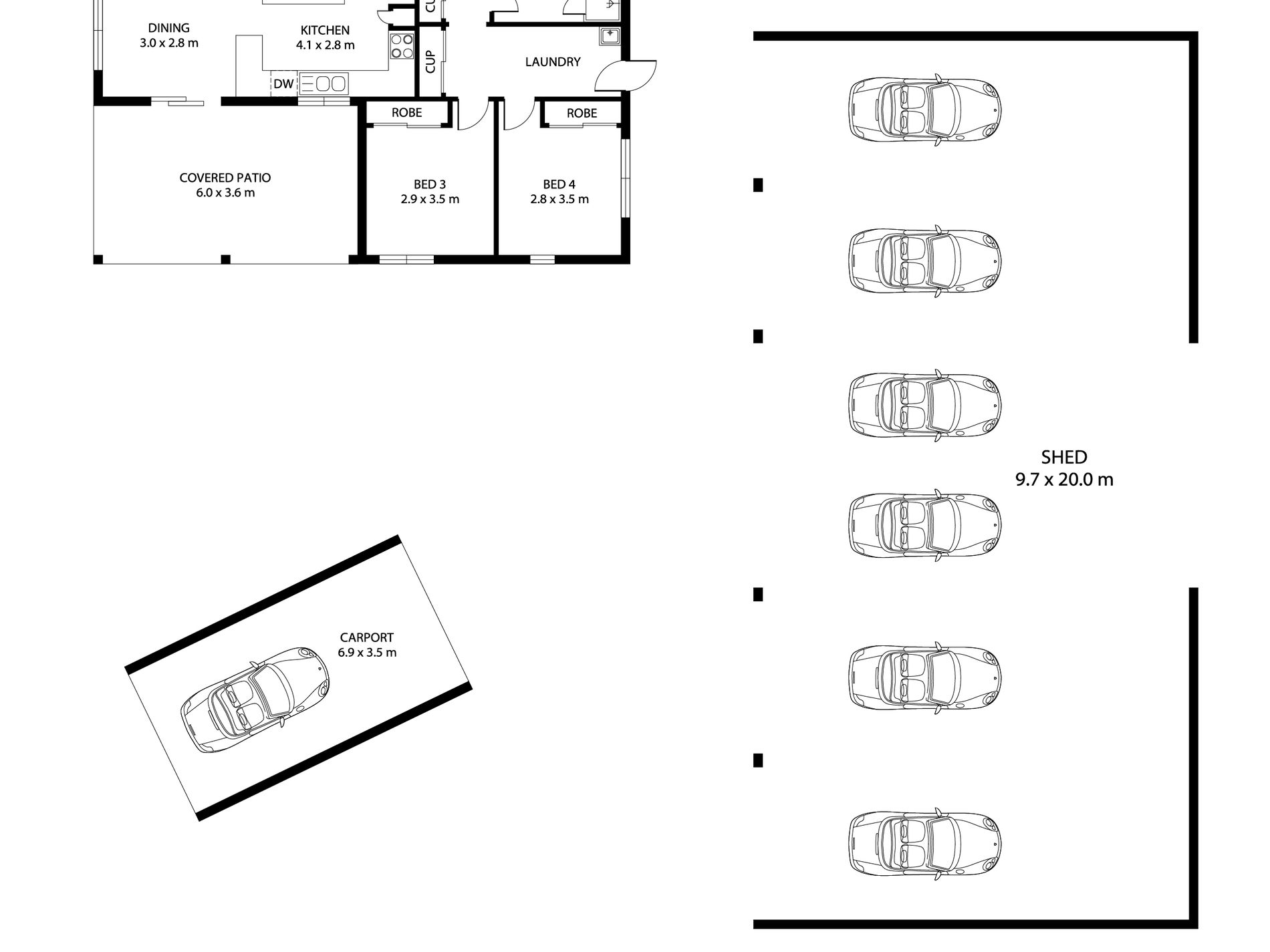
- Massive 5 bay shed (approx. 20m x 10m) with high clearance, ideal for trucks, machinery, boats, or a workshop
- Brand new roof and gutters installed August 2025
- Bore and rainwater tanks providing reliable water supply to the house and yard all year round
- Comfortable four bedroom home with practical, family friendly layout
- Open plan living and dining area with fireplace for year round comfort
- Functional kitchen with ample storage and workspace and a new oven installed in the last few years
- Tiled flooring throughout for low maintenance living
- Well appointed bathroom and separate laundry
- Additional shedding and covered parking options in close proximity to the main house
- The land is very usable and well manicured, plus has been previously used to create 4 x paddocks suitable for horses or hobby farming
- Seasonal creek/stream enhancing the natural landscape to the rear of the property
- Established trees and gardens offering privacy and tranquillity
- Abundance of fruit bearing trees including lemon, lime, passionfruit, mango, mulberry, avocado and loquat
- Outdoor entertaining areas to enjoy the peaceful surrounds
- Plenty of space for kids, pets, and future improvements
The Location
- Peacefully positioned in Hervey Range, known for its natural beauty and acreage lifestyle
- 15 minute drive from Rupertswood General Store & Service Station
- Enjoy a quiet, private setting while still within reach of everyday conveniences
- Approx. 25 minutes to major shopping and amenities
- Approx. 30 minutes to James Cook University
- Approx. 45 minutes to Townsville CBD
- Surrounded by open space, fresh air, and a relaxed rural community atmosphere
Features
- Shed
- Built-in Wardrobes
- Study
- Water Tank

































