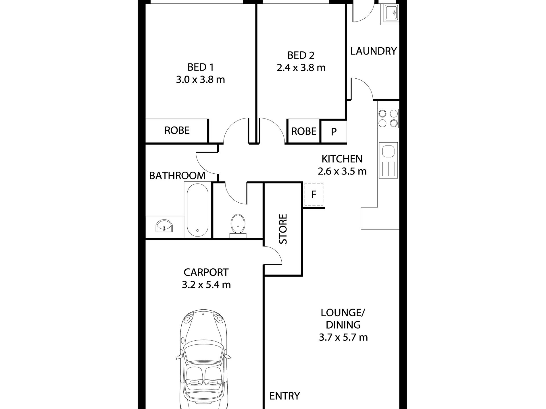
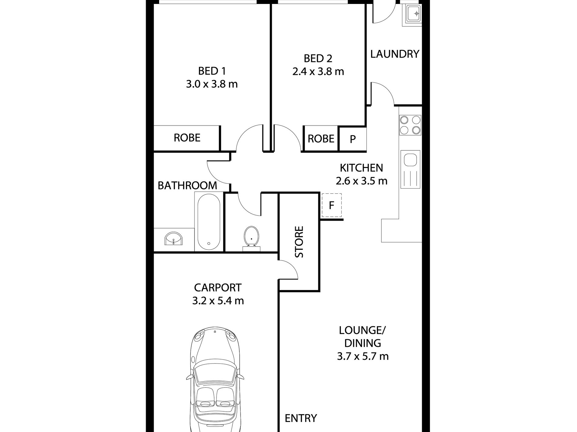
Positioned in the heart of Aitkenvale, this well maintained low set unit presents an excellent opportunity for investors seeking secure returns and long term stability. Offering a practical layout with two well sized bedrooms, open plan living, dining and central kitchen the home is designed for comfortable, low maintenance living. A private courtyard adds valuable outdoor space, while the property is currently leased to reliable long term tenants until 15 January 2027 at $375 per week, ensuring immediate income in a highly convenient location close to major amenities.
The Property
- Low-set unit offering easy access and low-maintenance living
- Two well sized bedrooms designed for comfort
- Functional bathroom with shower over bath and separate toilet
- Fully equipped kitchen with ample storage
- Open plan living and dining area creating a relaxed living space
- Private and secure courtyard ideal for outdoor enjoyment
- Single car accommodation
- Currently leased until 15 January 2027 at $375 per week
- Reliable long term tenants already in place providing immediate rental income
The Location
- Positioned in the central suburb of Aitkenvale
- Minutes to Stockland Townsville Shopping Centre
- Close proximity to Townsville University Hospital
- Close proximity to James Cook University
- Close to public transport, local shops, and everyday amenities
- Easy access to quality junior and senior schools
Features
- Courtyard
- Built-in Wardrobes



















