If you are looking to get a foothold in the high performing suburb of Douglas, this property should be on your list! Surplus to the current owner's needs this property is offered for immediate sale and has been priced to move in this busy market. Boasting a corner position and neighbours are limited and the breezes and aspect especially on the rear patio are superb. With a large, spacious, light and airy main living zone, there is plenty of family connection space as well as having a separate formal lounge/theatre room for when it is time to escape. With all four bedrooms of generous proportion and the main bedroom enjoying a clever office/retreat space that can be closed off from the sleeping area, this home is set up perfectly for executive family living. All offers are invited immediately so don't delay your enquiry on this one!
The Property
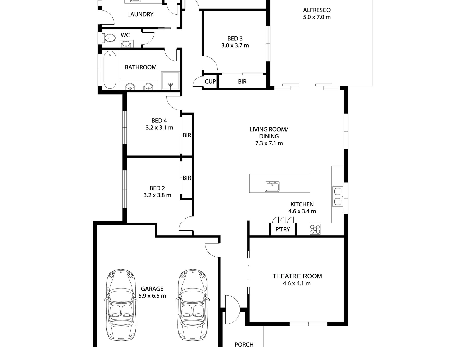
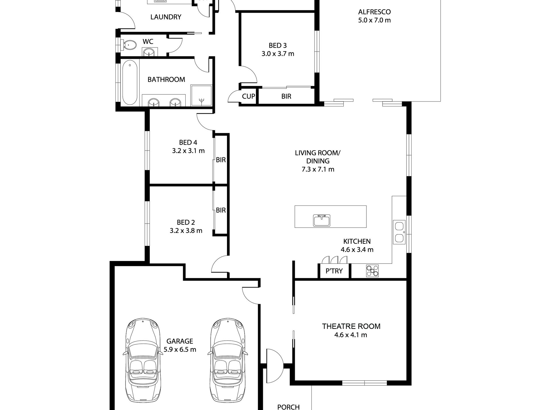
- Good-sized 691m2 corner block of land fully fenced
- Side vehicle access via double gates on the corner side of the property
- 2.7m high ceilings throughout plus cathedral ceilings to the main living space
- Large kitchen with elegant stone benchtops quality appliances including a 900mm upright oven with ceramic cooktop
- Separate home theatre room off the main entry area away from the other living zones
- Both bathrooms are well appointed with quality fixtures and fittings and feature wall tiling to the ceilings
- Main bathroom features a large shower plus a separate bathtub and twin vanities
- The ensuite is cleverly configured and has great storage within
- All bedrooms are generous in size, air-conditioned and have built in robes with mirrored panels
- Modern ceramic tiles to main living spaces as well as the bedrooms (excluding master which has hybrid timber floors) ensuring low maintenance
- All living areas air-conditioned for year round comfort
- Huge, tiled outdoor patio overlooking the back yard that is fully fenced
The Location
- Close proximity to Douglas Family Medical Centre and specialty shops
- Close proximity to the Riverview Tavern and IDK Cafe
- Close proximity to a 24-hour gym
- Close proximity to quality schooling and childcare centre
- Close proximity to James Cook University and Townsville University Hospital
- Close proximity to hike and bike trails, as well as the banks of the Ross River



















