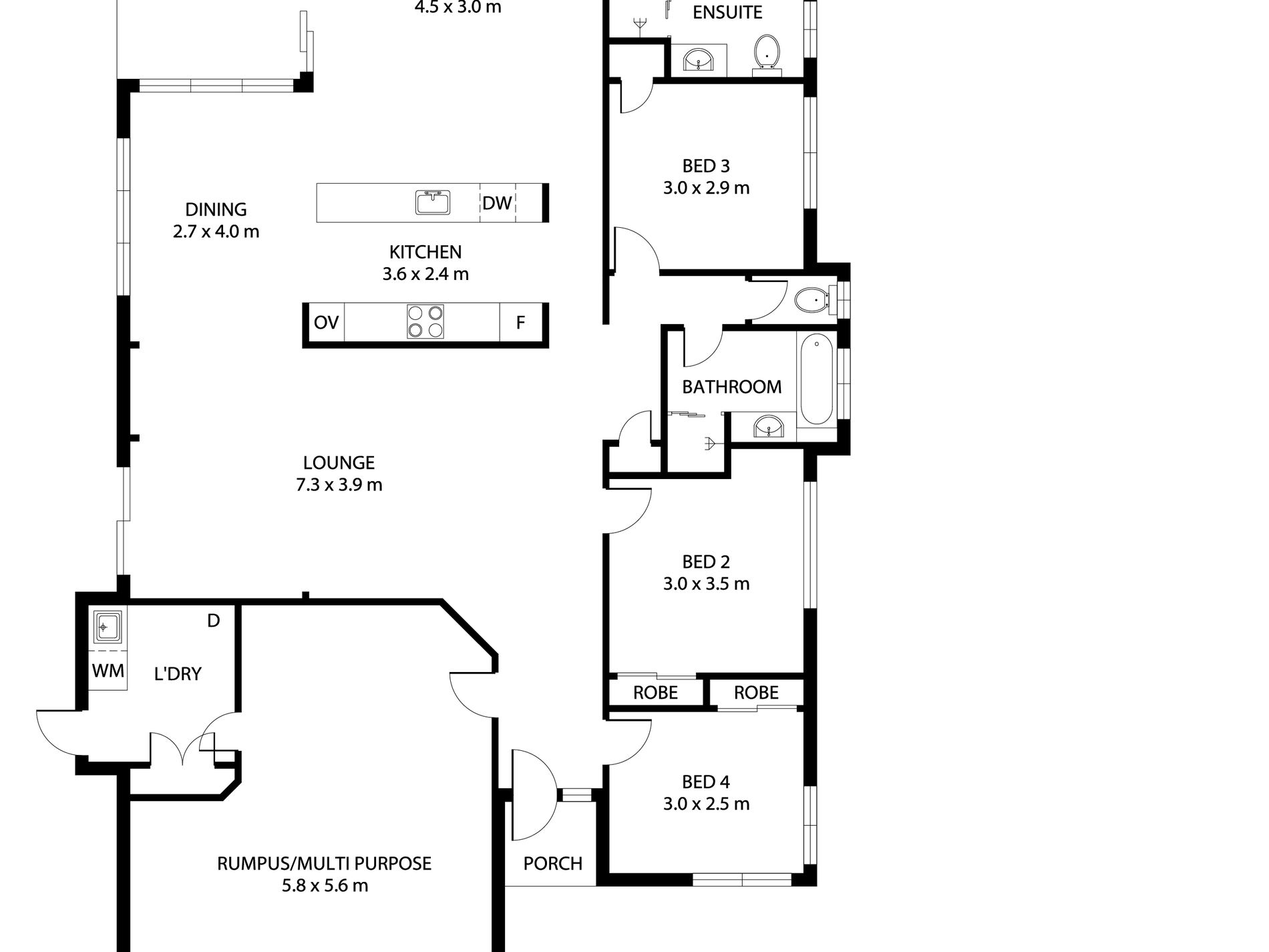
Positioned in a quiet court just moments from the Ross River, 10 Carisbrooke Court presents an outstanding opportunity to secure a beautifully maintained and thoughtfully extended family home in one of Annandale's most desirable streets. Designed with everyday comfort and effortless entertaining in mind, this fully tiled residence delivers multiple living zones, seamless indoor-outdoor connection, and the flexibility modern families truly value.
The extended floorplan enhances the natural flow between living and dining areas, while the renovated kitchen sits at the heart of the home, complete with quality appliances and generous storage. A converted garage adds even more versatility, creating the perfect kids retreat, rumpus room, or additional lounge space. Outdoors, the expansive covered patio overlooks a spacious backyard with room for a future pool, while double gate side access ensures there is space for boats, caravans or trailers. With quality upgrades, practical extras and a family friendly layout, this is a home designed to grow with you.
The Property
- Spacious four bedroom home set on a fully fenced, family friendly allotment
- Two well appointed bathrooms, including a private ensuite to the master bedroom
- Multiple living zones including a central family area opening to the patio
- Converted garage creating the ultimate kids retreat, rumpus, or second lounge
- Extended floorplan enhancing flow between living and dining areas
- Renovated kitchen with premium appliances and generous storage throughout
- Open plan dining and living area connecting seamlessly to outdoors
- Expansive covered entertaining area overlooking the private backyard
- Double gate side access ideal for boats, caravans, or trailers
- Rear garden shed providing practical additional storage space
- Air-conditioning throughout ensuring year round comfort and ease
- Solar helps keep electricity bills to a minimum
- Fully tiled interiors designed for low maintenance living
- Spacious backyard with room to add a pool if desired
The Location
- Quiet, family friendly court within one of Annandale's most desirable streets
- Moments from Ross River with scenic walking and cycling tracks
- Close proximity to Annandale Central including Coles and specialty stores
- Close proximity to Annandale State School for easy mornings
- Close proximity to William Ross State High School
- Close proximity to Lavarack Barracks employment hub
- Close proximity to James Cook University and Townsville Hospital
- Short drive to the Townsville CBD and dining precinct
Features
- Air Conditioning
- Deck
- Outdoor Entertainment Area
- Shed
- Fully Fenced
- Built-in Wardrobes
- Rumpus Room
- Solar Panels

































