Positioned in the heart of South Townsville's iconic Palmer Street, this dual key apartment presents a rare opportunity to secure a set and forget investment with guaranteed income locked in through to 2046. In one of the city's most vibrant riverside pockets, this is where lifestyle and long term security align, with a secure lease structure in place and no property management fees ensuring your returns are protected regardless of vacancy. Palmer Street continues to thrive as a preferred address for professionals, defence personnel, hospital staff, and corporate visitors, drawn to its waterfront dining scene, proximity to the CBD, and walkability to major landmarks. Combined with modern building facilities and strong occupancy demand, this is a strategic acquisition in a tightly held inner city enclave.
Guaranteed Rental Income
- 1 August 2026 - 31 July 2027: $27,425.05
- 1 August 2027 - 31 July 2028: $28,522.05
- 1 August 2028 - 31 July 2029: $29,662.93
- Plus two (2) further five (5) year options and one (1) further term of seven (7) years and four (4) months
- Guaranteed income regardless of vacancy
- No associated property management fees
- Body Corp. fees: Admin: $3,748.80pa; Sinking: $3,632.64pa; Insurance: $2,938.10pa; Total: $10,319.54pa approx.
- Council rates- $4,574.98pa
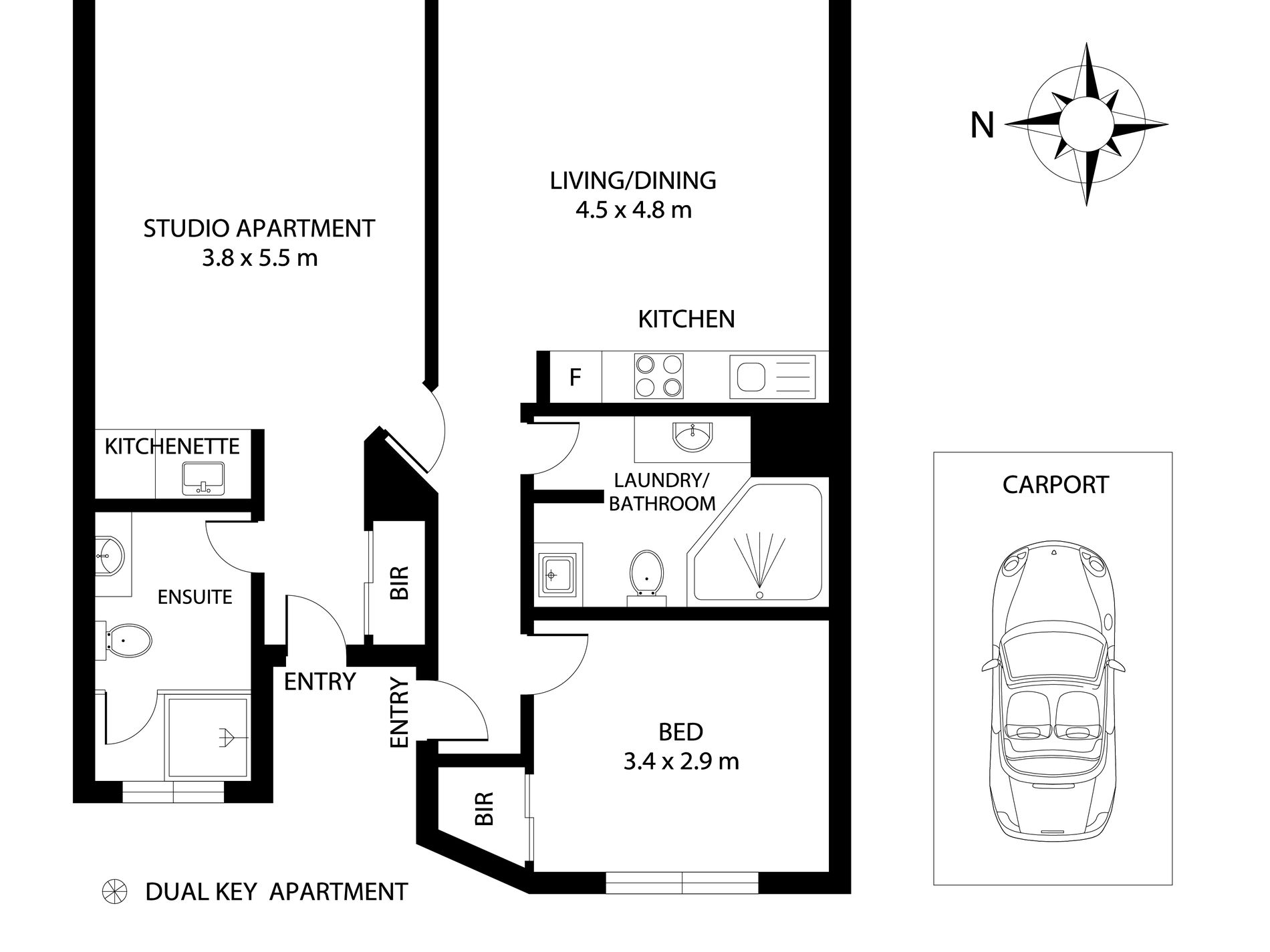
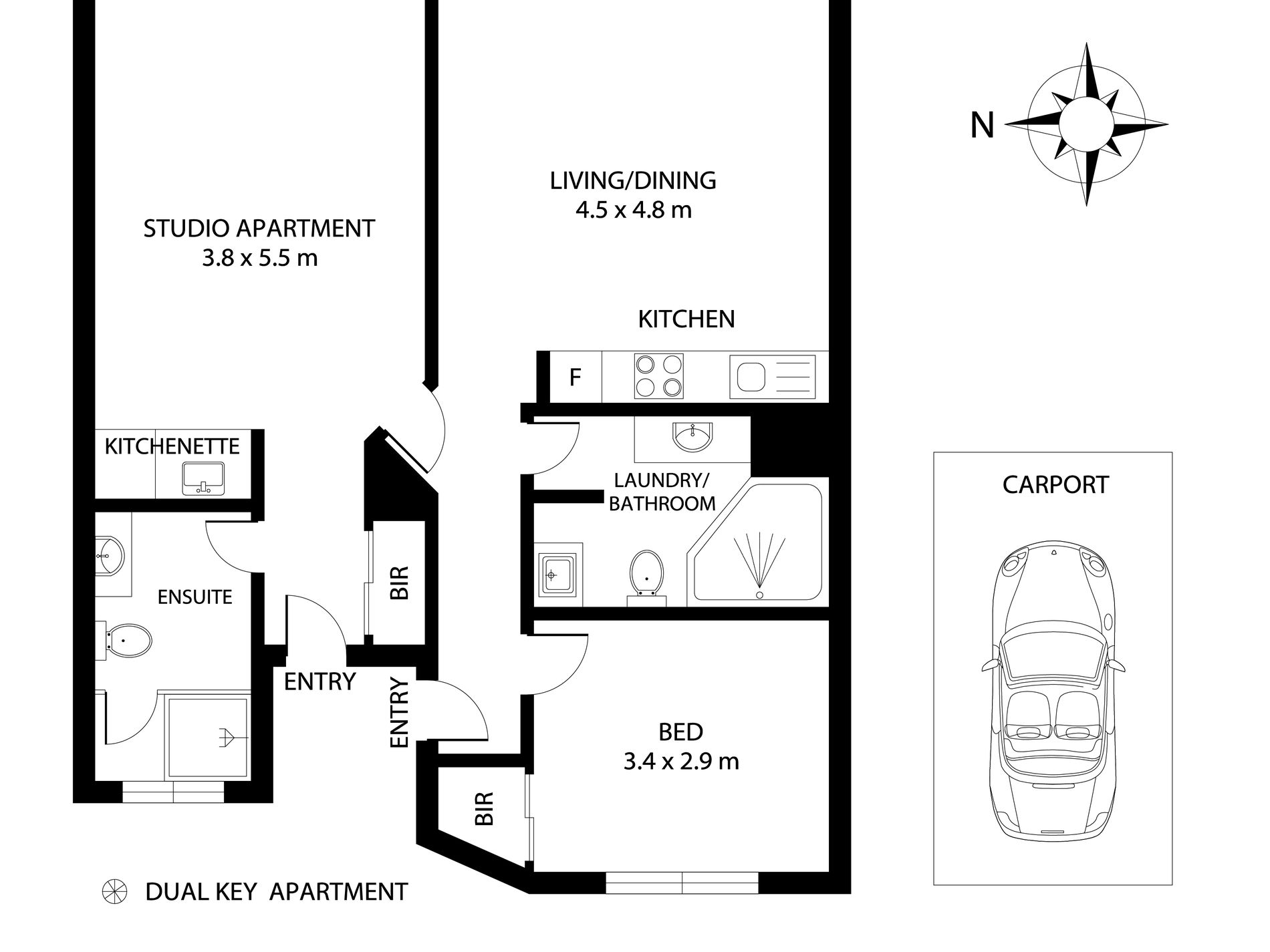
The Property
- Dual key apartment with income secured through to 2046
- One bedroom apartment featuring bathroom, laundry, kitchenette, and lounge
- Separate studio with bathroom, storage, and kitchenette, connected via a lockable interconnecting door
- Positioned one in from the corner, offering added privacy within the complex
- Located on level 1 with a north easterly aspect, capturing excellent natural light and breezes.
The Location
- Blue chip position within the renowned Palmer Street dining and entertainment precinct
- Walking distance to the CBD
- Walking distance to Queensland Country Bank Stadium
- Moments to quality junior and senior schools
- Short drive to The Strand waterfront
- Short drive to the Gregory Street café and dining precinct
Please note: Due to high occupancy rates, marketing photos are of the apartment located two floors above in the same position within the building, as the subject apartment is currently occupied.
Features
- Air Conditioning
- Outdoor Entertainment Area
- Swimming Pool - In Ground
- Built-in Wardrobes



















