Positioned on a generous 517m2 corner allotment with no neighbours to one side and walking trails from your door, this high-quality family home delivers space, comfort, and long-term appeal in a quiet and growing pocket. With high ceilings throughout, premium finishes, multiple living zones, and excellent storage, the home has been thoughtfully designed for easy living while offering strong investment credentials with a lease in place until October 2026 at $660 per week.
The Property
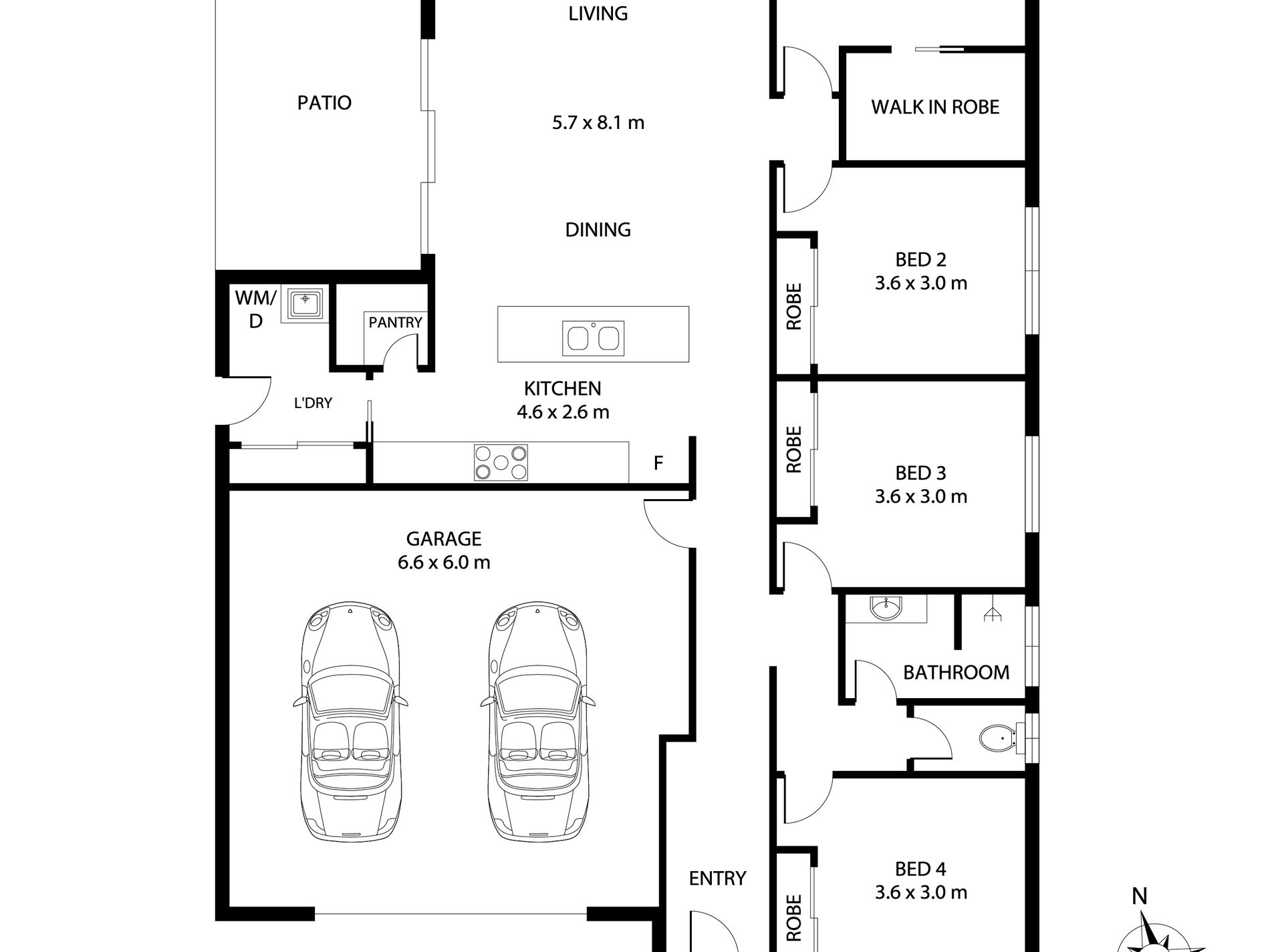
- Four well-sized bedrooms with built-in robes, carpet, ceiling fans, and air-conditioning
- Spacious master suite with walk-in wardrobe, ensuite, and direct access outdoors
- High ceilings throughout enhancing space, light, and overall comfort
- Stylish kitchen with stone benchtops, Smeg dishwasher and walk-in pantry
- Open plan living and dining area flowing seamlessly to the outdoors
- Separate media room perfect for those family movie nights
- Stone benchtops and quality finishes to both bathrooms
- Excellent storage solutions thoughtfully integrated throughout the home
- Solar system installed to assist with reducing ongoing power costs
- Security screening fitted throughout for added peace of mind
- Double lock-up garage plus side access suitable for a boat or caravan
- Garden shed positioned at the rear for additional outdoor storage
- Currently leased at $660 per week with tenancy in place until October 2026
The Location
- Quiet, family-friendly street
- Positioned in a growing Cosgrove community
- Easy access to major arterial roads
- Short drive to schools and local amenities
- Convenient connection to Townsville CBD and surrounds
Features
- Deck
- Shed
- Fully Fenced
- Built-in Wardrobes
- Dishwasher



















