The Link to Register Your Interest or Bid Online
https://buy.realtair.com/properties/220102
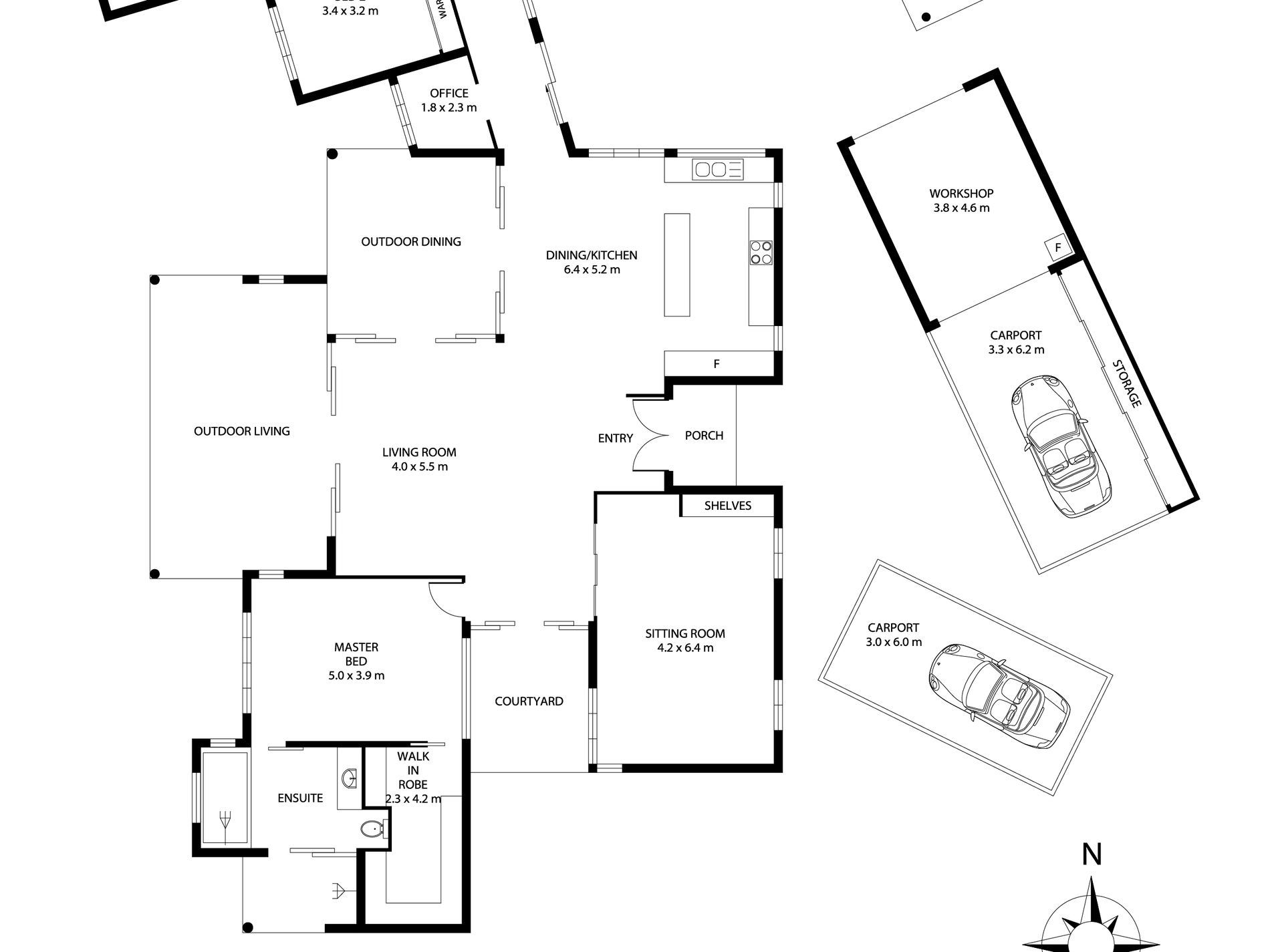
Privately positioned at the end of a quiet cul-de-sac, this architect-designed residence is a refined expression of space, light, and connection to nature. Set across a sprawling 1,010m² allotment, the home unfolds through a series of beautifully proportioned living zones, leafy outlooks from every room, and seamless indoor-outdoor transitions. The backyard presents as a parkland-style setting, alive with a variety of permanent and seasonal birdlife and regularly visited by a small group of pretty-faced wallabies creating a sense of tranquillity and retreat that is rarely found in suburbia. Thoughtfully designed to maximise privacy and flow, this is a home that feels calm, considered, and completely removed from the everyday, while remaining close to everything Annandale is loved for. 6 Coolullah Court delivers architectural integrity, everyday comfort, and a genuine sense of sanctuary that is increasingly rare.
The Property
- Architect-designed home showcasing a functional, free-flowing layout
- Four generous bedrooms, including a private master retreat with ensuite and dressing room
- Two well-appointed bathrooms with quality finishes
- Multiple living areas offering flexibility for families of all stages
- Central kitchen connecting effortlessly to dining and outdoor entertaining zones
- Covered alfresco and additional outdoor living areas framed by lush, established gardens
- Built-in window seating and timber louvres enhancing light, breeze, and architectural character
- Two single carports plus a fully powered garage, ideal as a workshop, studio, or craft room
- Expansive 1,010m2 allotment offering space, privacy, and a truly serene outlook
The Location
- Tucked away in a quiet, family-friendly Annandale cul-de-sac
- Close to Annandale Central Shopping Centre and everyday conveniences
- Easy access to quality schools, parks, and sporting facilities
- Convenient to James Cook University, Townsville University Hospital, and Lavarack Barracks
- Well connected yet wonderfully private, surrounded by established homes and natural green space
"If this property is being sold by auction or without a price a price guide can not be provided. The web site may have filtered the property into a price bracket for web site functionality purposes"
Features
- Air Conditioning
- Outdoor Entertainment Area
- Built-in Wardrobes
- Workshop
- Dishwasher
- Study



















































