Set on a generous 1,012m2 block nestled in one of Mundingburra's most established and leafy streets, 55 Mango Avenue delivers a rare blend of space, comfort, and lifestyle amenities. With significant upgrades, outdoor living features and flexible layout, this property presents an outstanding opportunity for families, investors, or those seeking a laid-back North Queensland home with real potential.
The Property
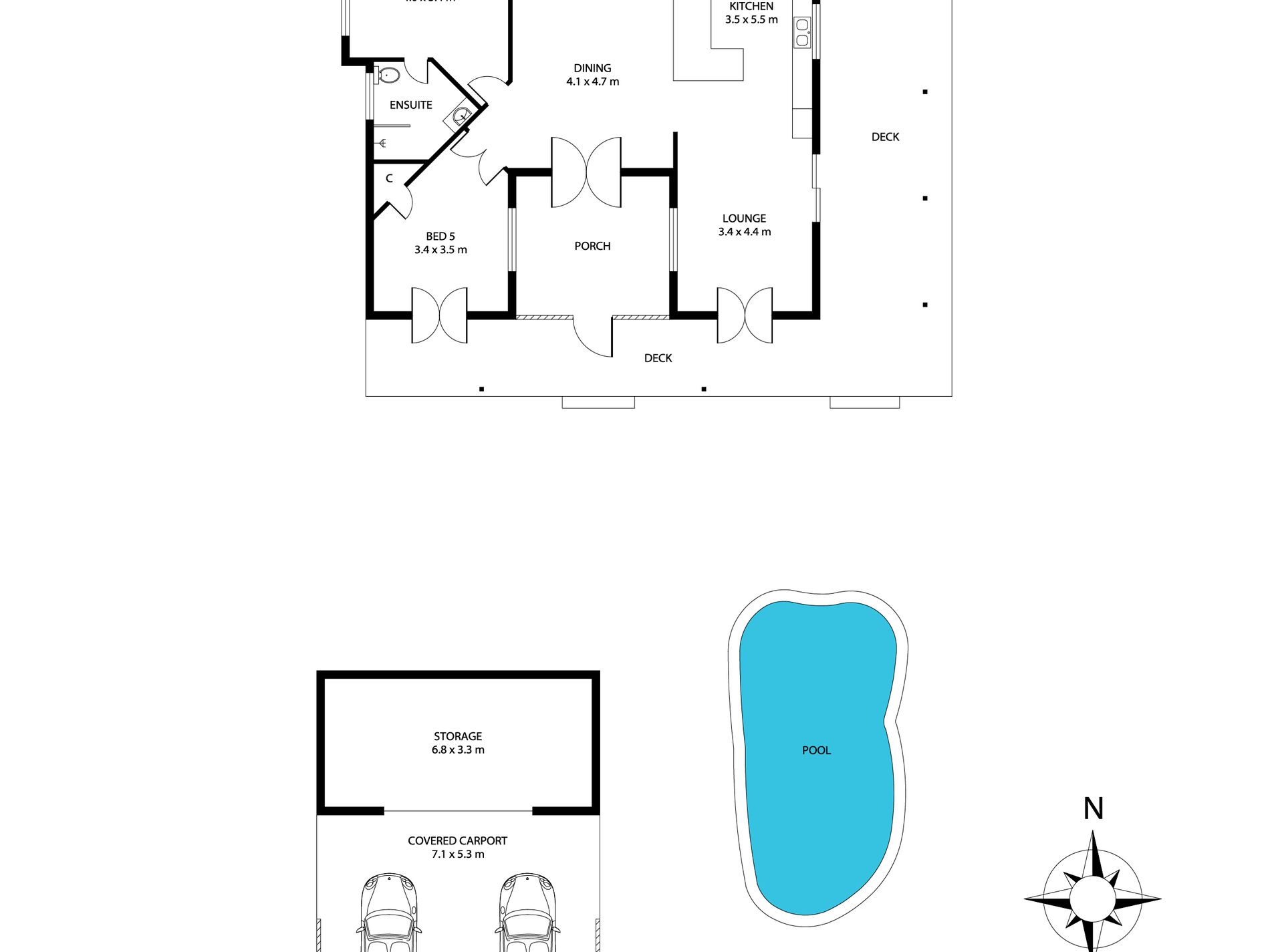
- Spacious 5-bedroom, 2-bathroom home, ideal for larger families, guests, or multi-generational living
- Generous 1,012m2 block providing ample room for outdoor living, gardening, or future expansions (subject to council approval)
- Light-filled open plan living zone seamlessly connected to dining and entertaining areas offering space, flow, and flexibility for everyday living and hosting
- Modernised kitchen with excellent storage, quality appliances, and functional layout, perfect for everyday cooking or entertaining
- Oversized entertaining deck wraps around part of the home, creating a seamless indoor-outdoor transition, ideal for relaxed living, weekend BBQs, or entertaining friends and family
- Inground pool completes the backyard, transforming the outdoor space into an inviting tropical retreat, a standout feature for warm-weather living and entertainment
- Double carport with extra side access offering secure parking plus plenty of space for additional vehicles, trailers, or storage
- Large 5th bedroom/study, providing flexibility for work-from-home
- Fully fenced block plus established tropical-style gardens and even a working bore, offering privacy and water-smart gardening in a unique, family-friendly environment
- Solar installation (5 kW) and a generator connection point, offering energy efficiency, potential savings, and added resilience
The Location
- Situated in the well-established, leafy suburb of Mundingburra, roughly 4km south-west of central Townsville, combining suburban tranquillity with easy city access
- Walking distance to riverside reserves, parklands, and green open spaces including access to riverside walking tracks along the Ross River, ideal for early-morning walks, cycling, or relaxing in nature
- Close to the expansive Anderson Park Botanical Gardens, a popular spot for picnics, leisurely strolls, and family days out among lush gardens and shady trees
- Convenient access to local shops, supermarkets and amenities along Ross River Road / Charters Towers Road, meaning everyday essentials, services, and groceries are never far away
- Close proximity to hospitals, schools and major transport links making it suitable for families, professionals, or those seeking ease of commute, services and amenities without compromising on peace and privacy
Features
- Air Conditioning
- Outdoor Entertainment Area
- Swimming Pool - In Ground
- Fully Fenced
- Secure Parking
- Built-in Wardrobes
- Solar Panels















































