The Link to Register Your Interest or Bid Online
https://buy.realtair.com/properties/200750
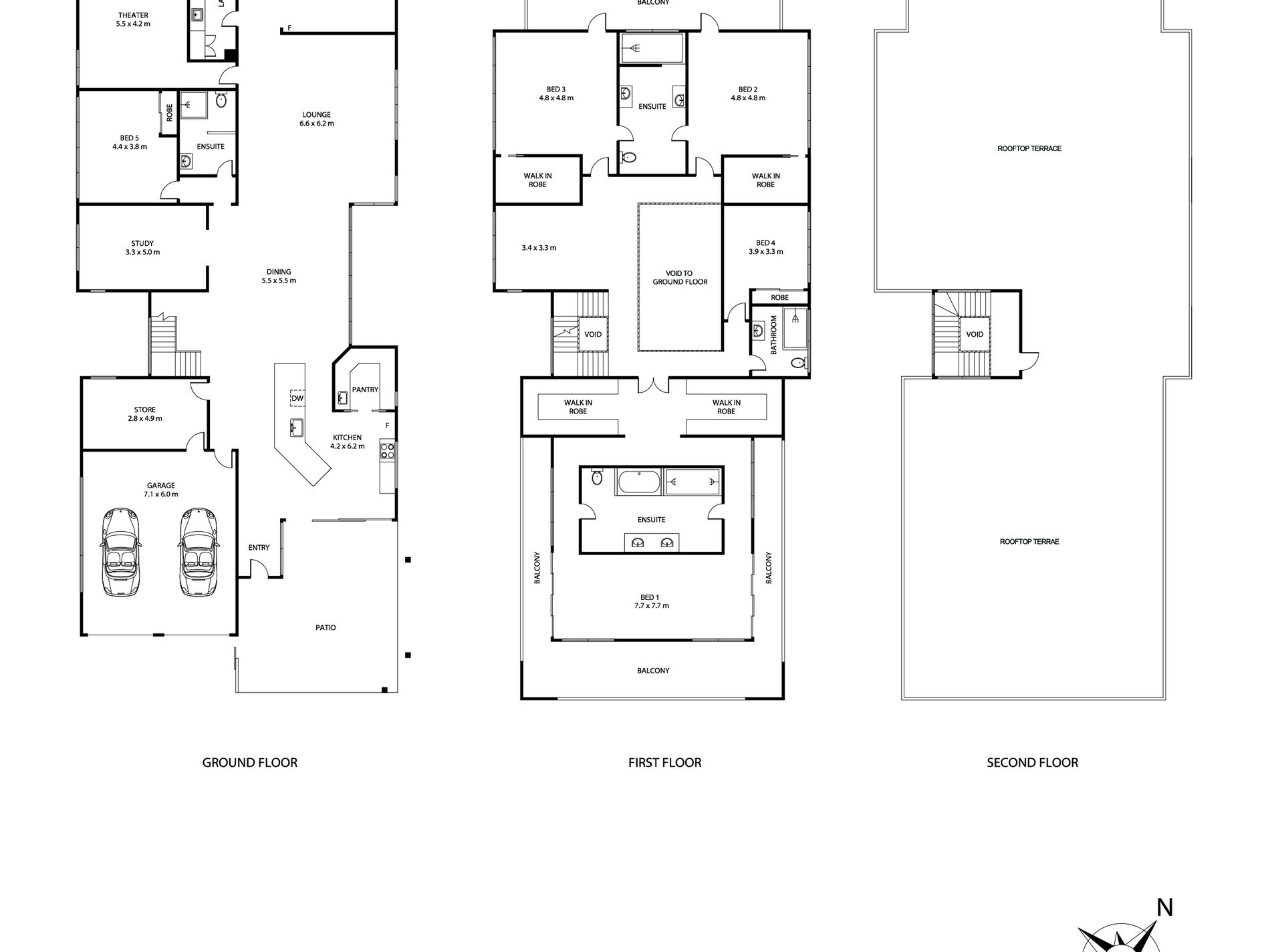
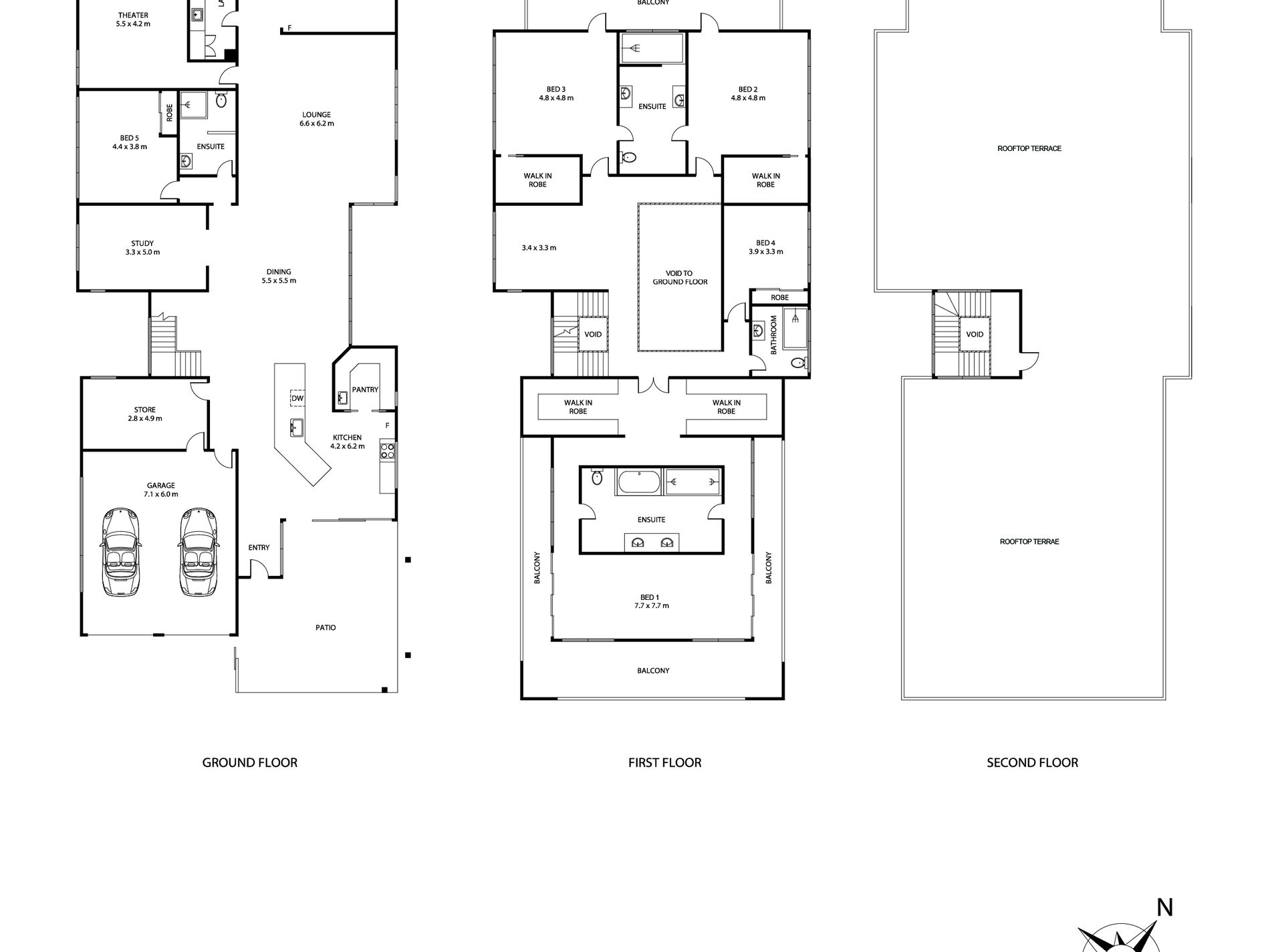
Perfectly positioned in one of Townsville's most exclusive lifestyle locations, 44 Stuart Street, North Ward, represents the ultimate in coastal luxury and architectural excellence. Just a stone's throw from Strand Park and the iconic Strand beachfront, this exceptional residence was thoughtfully designed and built by the current owners to capture the essence of contemporary North Queensland living. Spanning three impressive levels of approximately 300m² each, the home delivers over 900m² of total living and entertaining space all finished to the highest standards. The crowning jewel is an extraordinary rooftop terrace of approximately 300m², offering the most unique viewpoint to soak in some ocean and park views and a breath-taking outlook back to Castle Hill and across to Yarrawonga. Whether you're entertaining guests under the stars or simply enjoying the ever-changing coastal vistas, this property defines sophisticated city-beach living at its very best. From its premium location to its striking design and unmatched lifestyle appeal, this North Ward masterpiece stands as a true one-of-a-kind opportunity.
The Property
- Architecturally designed and master built residence offering approximately 900m² of luxury living & entertaining across three levels one of which includes the spectacular roof top terrace
- Three expansive levels of approximately 300m² each, showcasing grand proportions throughout
- Spectacular rooftop terrace of approximately 300m² with panoramic views of Castle Hill, Yarrawonga, and glimpses of the ocean and parklands
- Seamless blend of indoor and outdoor living spaces designed for entertaining and relaxation
- The ground floor boasts a palatial main living/dining space with a stunning void to the upper level that not only creates real wow factor it also floods this area with natural light
- Contemporary open-plan layout with soaring ceilings and extensive glass elements capturing light and breezes into the heart of the home
- Premium kitchen featuring high-end appliances, stone benchtops, and an abundance of storage as well as a full butler's pantry
- Multiple living and entertaining zones providing versatility for large families or guests
- Huge home cinema on the ground floor with wall panelling to enhance the sound proofing quality of the room
- Lavish master suite with private balcony, his & her walk-in robes, and luxurious ensuite with twin vanities, double shower and even a TV above the bath
- Additional three generous bedrooms on the same level as the master two of which have large walk-in-robes
- There is a large fifth bedroom on the ground floor with its own private en-suite perfect for the adult kids or extended/blended family all living together
- All four bathrooms feature high-end fixtures and fittings including stone top vanities and wall tiling to the ceiling
- Dedicated home office or study space on the ground floor ideal for remote work or business owners
- Fully air conditioned for year-round comfort with ducted and split-system options
- Extra deep double garage perfect of added storage space plus additional off-street parking for two more vehicles
- Large storeroom accessible both from the garage and also into the living are making a perfect mud-room or a great multi-purpose room depending on the family's needs
- Low-maintenance landscaping allowing more time to enjoy the beachside lifestyle
- Constructed to the highest standards with quality materials and architectural detailing throughout
- Exceptional opportunity to secure one of North Ward's most exclusive contemporary homes in a forever location
The Location
- Prime North Ward address just a stone's throw from Strand Park and the beachfront
- Short stroll to Gregory Street's cafés, bars, and dining precinct
- Moments to Jezzine Barracks recreational park and coastal walking trails
- Easy access to schools, public transport, and Townsville CBD
- Surrounded by premium homes in one of Townsville's most tightly held enclaves
"If this property is being sold by auction or without a price a price guide can not be provided. The web site may have filtered the property into a price bracket for web site functionality purposes"
Features
- Air Conditioning
- Outdoor Entertainment Area
- Remote Garage
- Fully Fenced
- Built-in Wardrobes































