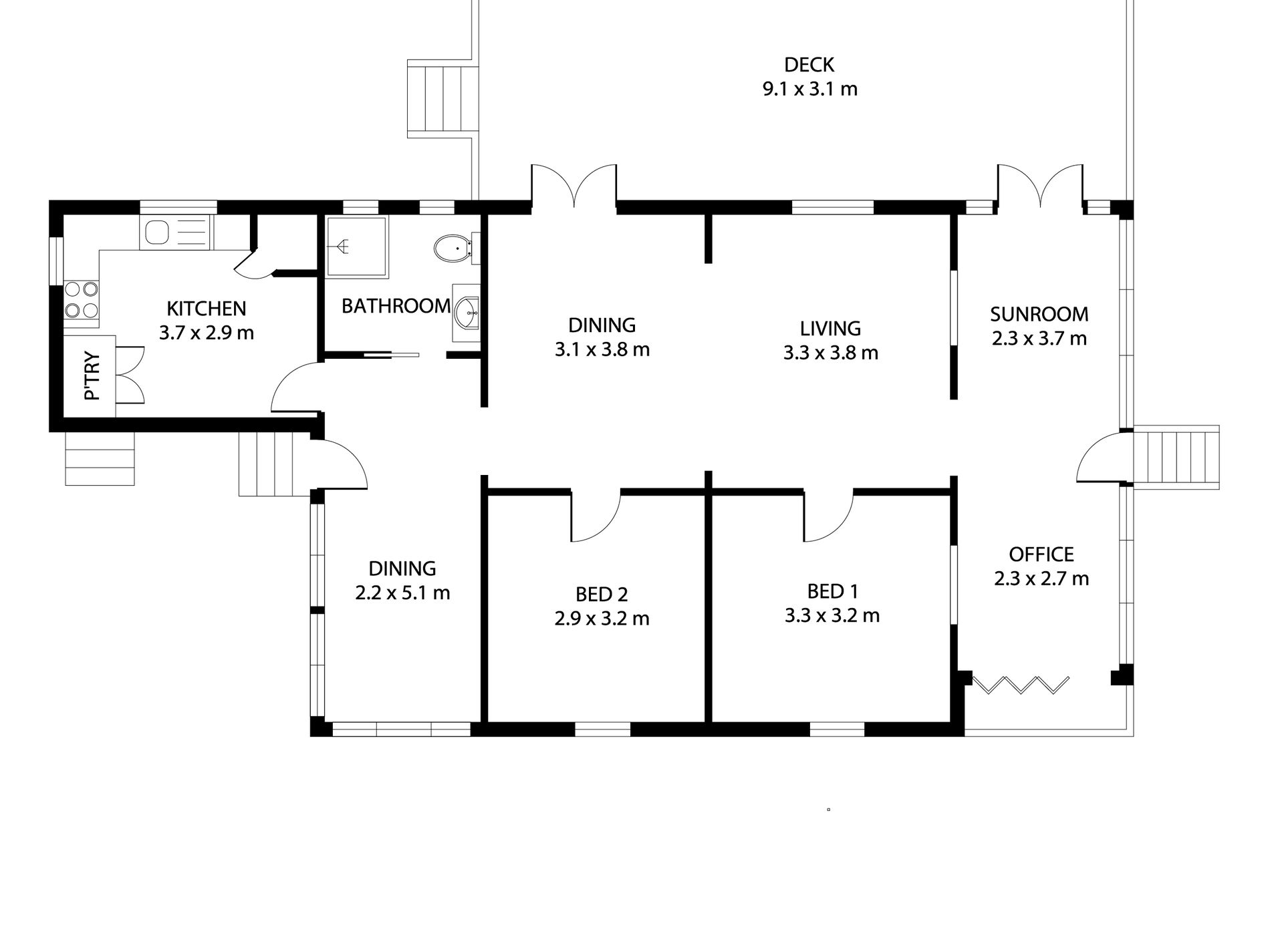
A timeless sanctuary in sought after of Hermit Park, this beautifully refreshed Queenslander blends classic character with effortless modern living. Crowned with tongue-and-groove walls, soaring ceilings, decorative fretwork, and polished timber floors, it offers enduring charm and inviting elegance.
Inside, discover versatile spaces including two comfortable bedrooms, an additional sleepout, a generous central living zone, and a cozy breakfast nook. Flow out to the expansive deck that spans the side of the home and overlooks a low-maintenance, fully fenced 412m2 lot - ideal for relaxed entertaining or peaceful family living. Freshly painted inside and out and situated on a manageable block, this home offers both style and convenience in a vibrant, central suburb.
The Property
- Tastefully renovated Queenslander cottage in pristine condition
- Two bedrooms plus versatile sleepout space
- One updated bathroom
- Expansive central living area with polished timber flooring
- Separate breakfast nook at the rear of the home
- Large, covered deck running the length of the home-perfect for entertaining
- Fully fenced 412m2 block with established garden for privacy and ease
- Elegant heritage finishes: tongue-and-groove walls, high ceilings & fretwork
- Freshly painted throughout for a bright, clean presentation
The Location
- Set in leafy Hermit Park, a heritage-rich suburb with a strong community feel
- Convenient proximity to local schools including Hermit Park State School and Townsville State High School
- Easy access to major shopping hubs and amenities-just minutes to Castletown and Stockland centres
- Well-connected via public transport and arterial roads
- Only a short drive to Townsville CBD, The Strand, and local parklands
Features
- Air Conditioning
- Deck
- Outdoor Entertainment Area
- Fully Fenced
- Floorboards



















